
Projekt Samobor
Stanovi po Vašoj mjeri.
4
zasebna ulaza
3890
stambene površine
47
stambenih jedinica
Početak gradnje: veljača 2025. godine
Završetak gradnje: prosinac 2026. godine
O PROJEKTU:
- kompleks se sastoji od četiri manje zgrade, tri isključivo stambene namjene i jedne stambeno-poslovne namjene, svaka zgrada je s vlastitim ulazom
- svaka zgrada ima svoj lift i stubište, čime se osigurava veća privatnost i manji broj stanova po ulazu
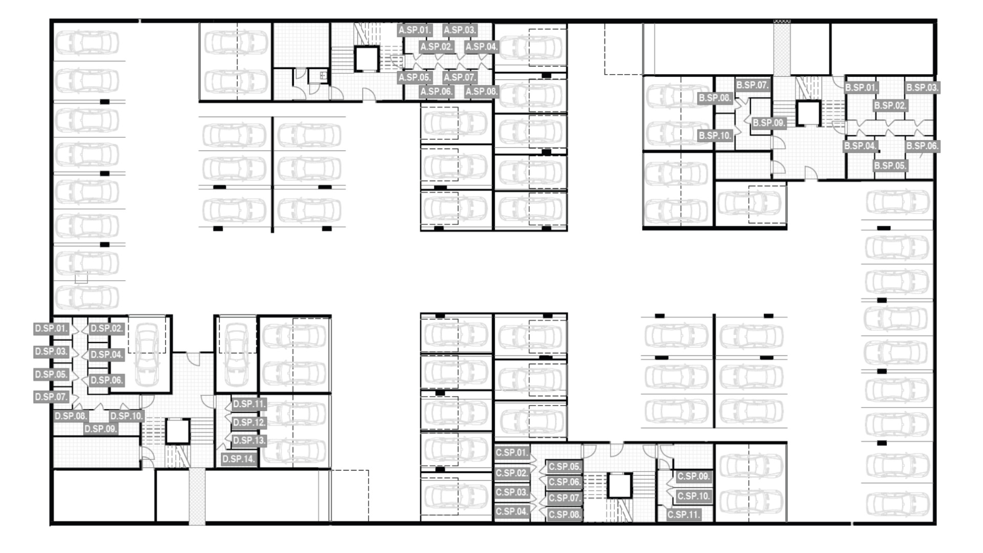
- zgrade se sastoje od zajedničke podzemne etaže s garažama, prizemlja, dva kata i uvučenog kata
- ukupno 47 stambenih jedinica u četiri zgrade (dvosobni, trosobni i četverosobni stanovi)
- 2 poslovna prostora smještena u prizemlju zgrade A
- 31 garažno mjesto
- 29 garažnih parkirnih mjesta
- 42 vanjska parkirna mjesta
- osigurana su spremišta različitih površina, raspoređenih unutar podruma svake zgrade
GRIJANJE
- podno grijanje u svim stambenim jedinicama putem dizalica topline Samsung sustava
- svaki stan ima svoj uređaj i sustav te je neovisan o drugim stanovima (vlastita regulacija grijanja i potrošnje)
- spremnik za toplu vodu je veličine 200 litara.
- termostati standardno idu u sve spavaće sobe, dnevni boravak i kupaonicu, s mogućnošću upravljanja putem pametnih telefona
- sustav grijanja se odlikuje kompaktnim dizajnom, ima intuitivno upravljanje i pametno povezivanje te se jednostavno servisira i tiho radi.
- sustav grijanja koji generira najmanje režijske troškove u odnosu na ostale vrste grijanja (plin, toplana)
- vanjske jedinice dizalica topline postavljaju se na krov zgrade te ne generiraju dodatnu buku niti vizualno narušavaju izgled zgrade
KLIMATIZACIJA
- svaki stan opremljen je Samsung Wind free klimatizacijskim uređajem koji omogućuje ugodno hlađenje prostora bez izravnog strujanja zraka s mogućnošću upravljanja na daljinu
- vanjske jedinice klimatizacijskih uređaja izmještaju se na krov zgrade te ne generiraju dodatnu buku niti vizualno narušavaju izgled zgrade
- sustav klimatizacije odvojen je od sustava grijanja
VANJSKA STOLARIJA
- PVC vanjska stolarija – MARLEX NEO_MD i SMART SLIDE NEO
- dvobojna stolarija – bijela iznutra, antracit izvana, za moderan izgled i usklađenost s interijerom i pročeljem zgrade
- višekomorni profili s trostrukim brtvljenjem za odličnu toplinsku i zvučnu izolaciju
- niskoenergetske klizne stijene s naprednim Smart Slide sustavom za glatko i tiho otvaranje
- aluminijske rolete s integriranim električnim podizačima za jednostavno i tiho upravljanje
-
rolete s integriranim, skrivenim kutijama u fasadi – bez vidljivih plastičnih elemenata u interijeru.
-
diskretno rješenje koje čuva čiste linije pročelja i interijera.
UNUTARNJA STOLARIJA
- sva ulazna vrata u stanove su protuprovalna, protupožarna i protudimna nestandardnih dimenzija visine 220 cm
- visokokvalitetna unutarnja stolarija BARAUSSE Italy, nestandardnih dimenzija od 240 cm, sa skrivenim okovima (3 komada po vratima) i magnetnim bravama
KONSTRUKCIJA
- armirano-betonska konstrukcija
DIZALO
-
svaka zgrada opremljena je s vlastitim liftom, što omogućuje veću privatnost i manji broj stanova po liftu
-
liftovi su smješteni unutar svake zgrade, s direktnim pristupom iz garaže do svih katova
-
planirana je ugradnja modernih, tihih i energetski učinkovitih liftova, u skladu s najvišim standardima udobnosti i sigurnost
FASADA
- ETICS sustav s toplinskom izolacijom od 15cm, uz integrirane protupožarne prekide od kamene vune, u skladu s važećim protupožarnim propisima.
- ovakvo rješenje osigurava visoku energetsku učinkovitost, ali i dodatnu sigurnost u slučaju požara.
ZIDOVI
- fasadni zidovi su armirano-betonski debljine 20 cm te obloženi s vanjske strane ETICS toplinskim sustavom
- pregradni zidovi među stanovima su debljine 20 cm i dodatno izolirani
- zidovi prema hodnicima su armirano betonski debljine 20 cm i dodatno izolirani
- pregradni zidovi unutar stanova su izrađeni metodom suhe gradnje (gips-kartonske ploče sa kvalitetnom zvučnom izolacijom)
PODNE OBLOGE
- podne obloge visokog standarda renomiranih proizvođača, u potpunosti prilagođene podnom grijanju.
SANITARNA OPREMA
- visokokvalitetna keramika renomiranih europskih proizvođača, usklađena s dizajnom i funkcionalnošću suvremenih stanova
- walk-in tuševi s niskoprofilnom kadicom za jednostavan pristup i moderan izgled proizvođača ROCA
- moderni umivaonici proizvođača ROCA i slavine pažljivo odabrani za funkcionalnost i suvremen dizajn






